CONCOURS POUR LE CFA DE MALLEMORT
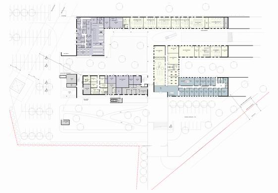
Le CFA de MALLEMORT est situé au pied du massif du LUBERON, au croisement du RD7n qui se dirige vers le village de MALLEMORT et du RD17d. Il occupe ainsi une position importante dans le site péri-urbain du village. Profitant des 2 m de déclivité naturelle du terrain par rapport aux voies, Les bâtiments s’implantent discrètement dans le site : par leurs hauteurs volontairement limitées, ils préservent les vues dégagées sur le grand paysage alentour, et plus particulièrement sur le massif du LUBERON au Nord qui reste très présent et constitue l’écrin lointain du CFA. Cette volonté d’intégration paysagère est renforcée par le traitement des toitures, plantées des mêmes essences que la prairie existante, pour donner le sentiment que le terrain naturel se soulève légèrement et que le projet semble creusé dans ce terrain plutôt que posé sur celui-ci. Les éléments du programme sont donc tous disposés de plain-pied à l’exception de l’hébergement, dont le caractère plus intime, la densité et la répétitivité des surfaces rendent préférable une implantation sur plusieurs niveaux.
CONCOURS Juin 2013
M.O : CITADIS
BET : ADRET / SECMO
ECONOMISTE : R2M
Surf HO : 5 200 m2
Coût : 7 300 000 • HT









